Negozio in vendita

Rezzato, Via Wolfgang Amadeus Mozart
€ 900.000
Prezzo aggiornato
3 locali 3 locali
500 Mq 500 Mq
2 bagni 2 bagni

Negozio in vendita

Rezzato, Via Wolfgang Amadeus Mozart

Descrizione annuncio

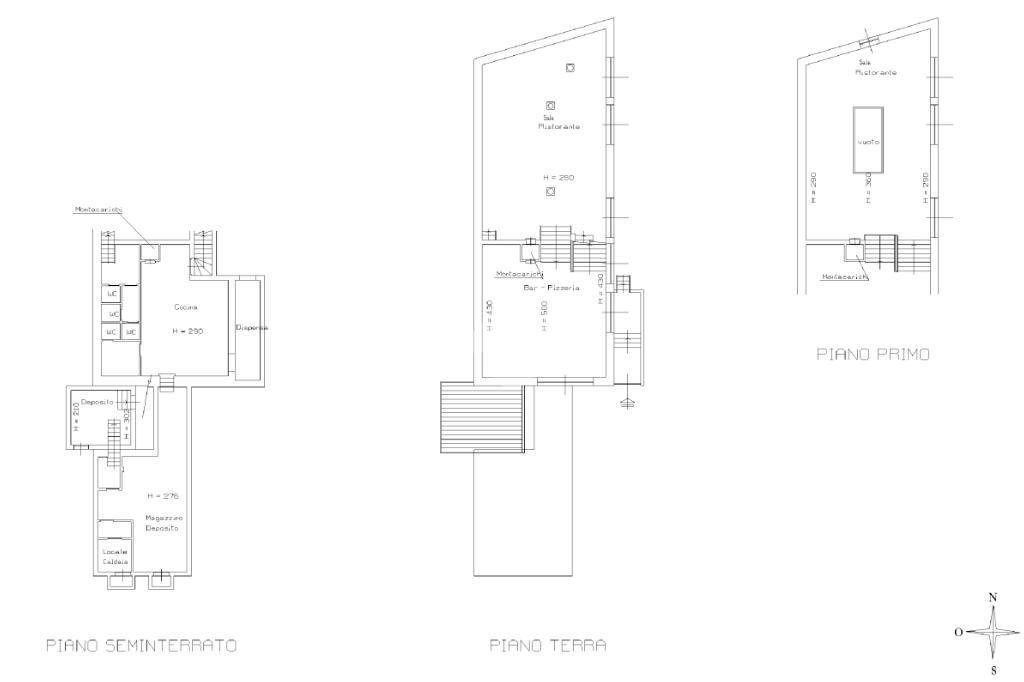
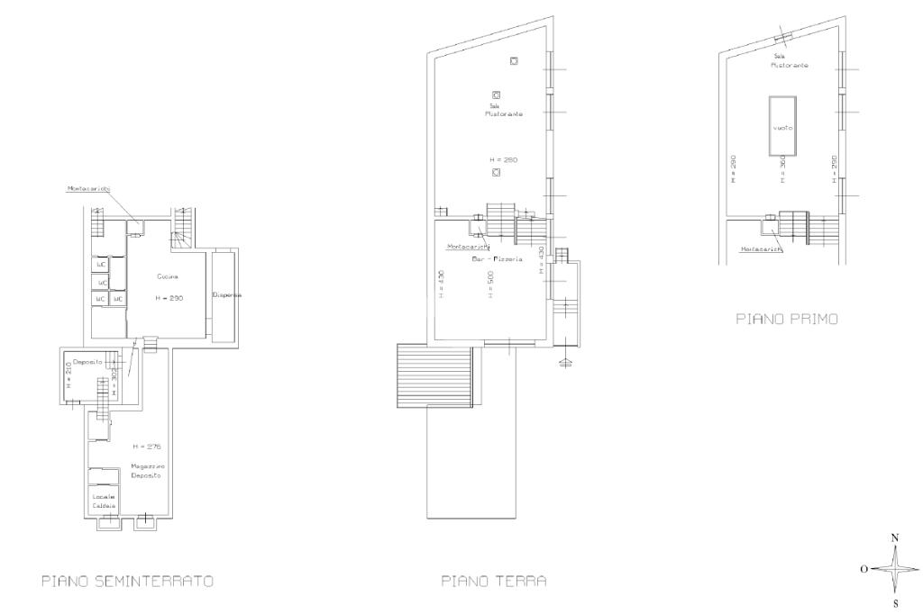
REZZATO, Via Mozart – Immobile commerciale indipendente di circa 500 mq, situato nel cuore di Rezzato, in una zona strategica facilmente accessibile. La proprietà è composta da tre locali, tra cui un ampio locale principale di 350 mq, comprensivo di un soppalco funzionale. Gli spazi interni sono versatili e ben distribuiti, adatti a molteplici attività commerciali o professionali. All'esterno è presente un ampio parcheggio illuminato che garantisce facilità di accesso.

DESCRIZIONE E PARTICOLARITÀ

-Superficie: La proprietà ha una superfice di 500 mq suddivisi in tre locali più un plateatico di fronte all’ingresso.

-Visibilità: L’immobile è situato in una zona strategica al centro di Rezzato.

-Posizione: Il locale si trova in via Mozart, al centro del comune di Rezzato. L’area è facilmente accessibile in auto con collegamenti rapidi alla strada principale.

-Servizi igienici: L’immobile è dotato di doppio servizio igienico entrambi con antibagno.

-Parcheggio: L’edificio gode di un ampio piazzale illuminato.

-Impianti: Il negozio dispone di impianto di riscaldamento e condizionamento autonomi completamente rinnovati. L’impianto elettrico rispetta tutte le normative attuali.

-Spese condominiali: Non sono presenti spese condominiali.

UBICAZIONE E CONTESTO

Il paese di Rezzato fa parte della prima cintura dell’hinterland cittadino di Brescia, posto sulla privilegiata arteria d’accesso che dalla strada statale 11 Padana Superiore prosegue attraversando tutto il territorio comunale per congiungersi infine al Viale Sant’ Eufemia. Lungo questa strada caratterizzata dall’ intenso flusso veicolare, sono presenti innumerevoli spazi commerciali, centri commerciali, moderni edifici direzionali e parchi commerciali, mentre nel vissuto centro storico troviamo negozi classici inseriti in edifici caratteristici o in situazioni condominiali. Dista solamente tre chilometri dall'imbocco della strada statale Gardesana che consente di collegarsi alla strada provinciale 11, meglio conosciuta come tangenziale sud, arteria viaria che collega a tutti i quartieri della città di Brescia, oltre a consentire l'accesso al casello autostradale di Brescia Centro delle autostrade A4 Milano - Venezia ed A21 Brescia - Cremona - Piacenza - Torino. Per chi non avesse disponibilità di raggiungere il posto con l’automobile, la zona è ben servita dal trasporto pubblico con fermata dei mezzi collocata nelle vicinanze.

Mostra tutto

Nelle vicinanze

Trasporto pubblico Trasporto pubblico
Rezzato
Rezzato
1,3 Km
Via Leonardo Da Vinci 54 PP.TT.
Via Leonardo Da Vinci 54 PP.TT.
140 m
Via Leonardo da Vinci PP.TT
Via Leonardo da Vinci PP.TT
260 m
Ricariche auto elettriche Ricariche auto elettriche
Detas eVolve Smart 22KW+22KW
1,6 Km
LIDL Brescia Sant'Eufemia
2,9 Km
Scuole Scuole
Scuole
300 m
Scuola Primaria Tito Speri
350 m
Scuola Primaria Caduti Piazza della Loggia
880 m
Scuola primaria Pietro Goini
1,3 Km
Scuola secondaria di primo grado Giovita Scalvini
2,4 Km
Farmacia Farmacia
Farmacia Comunale San Carlo
920 m
Farmacia Simeoni Dottoressa Piazzi
1,2 Km
Farmacia Lanzani
2,4 Km
Farmacia Comunale
2,8 Km
Farmacia Valverde
2,8 Km
Ospedali Ospedali
Azienda Tutela Salute
720 m
Supermercati Supermercati
LIDL
460 m
Despar
530 m
Punto Simply
1,3 Km
MD
2,5 Km
Conad
2,5 Km
Negozi Negozi
La Nuova Forneria
330 m
Minimarket Sorelle Confortini
1,1 Km
Chicco
2,9 Km
Bar Bar
Richs
210 m
Cocorico cafè
400 m
Bar
1,8 Km
Sister's Cafe
2,6 Km
Circolo Colony
2,6 Km
Ristoranti Ristoranti
Pizzeria Ristorante Mozart
10 m
La Sosta
100 m
Ristorante Filatoio
120 m
Osteria Dei Boci
240 m
Bar Tabacchi Le Bistrò
280 m
Mostra tutto

Caratteristiche

Rif.:
61109708
Piano:
Terra di 1
Totale piani:
1
Posti auto:
99
Condizionamento:
Autonomo
Ascensore:
No
Mostra tutto
Prezzo Prezzo
€ 900.000
Rata mutuo Rata mutuo
€ 4.241 / mese
Spese annue Spese annue
€ 0
Anche in affitto a
Proponi il tuo prezzoProponi il tuo prezzo

Altre caratteristiche

Descrizione dei locali
Bagno Cieco

Classe Energetica

Questo immobile è esente da classe energetica
Anno di costruzione:
1980
Riscaldamento:
Autonomo
Tipo impianto:
Ad aria
Tipo alimentazione:
Altro

Prezzo ridotto di €1 (6%%)

Ti interessa visionare l'immobile?

Fissa un appuntamento  Fissa un appuntamento

Richiedi informazioni

Clicca su Leggi per aprire l'informativa
* Questi campi sono obbligatori

Calcola il tuo mutuo

Semplice e senza impegno
Anticipo

( % )
Mutuo

( % )

pochi semplici passi

inserisci i tuoi dati
Questionario completato
Grazie per aver richiesto un appuntamento senza impegno con un nostro Consulente del Credito e Assicurativo.

Hai inserito correttamente tutti i dati necessari e a breve riceverai una e-mail con un link da convalidare per inviare i tuoi dati.
Affiliato
Brescia Est Srl
Viale Sant'Eufemia, 200 25135 Brescia (BS)

Il nostro staff


  • Valeria Crippa
    Coordinatrice

  • Randa Ehroud
    Collaboratrice

  • Loris Maria Villy Mittica
    Affiliato

  • Francesco Cesare Sandrini
    Collaboratore
Viale Sant'Eufemia, 200 25135 Brescia (BS)
Zona: Brescia Hinterland Est - Rezzato - Castenedolo - Mazzano - Molinetto
Mostra su mappa
Orari: lunedì-venerdì 8:30-12.30 14.00-19:00 sabato 8.30-12.30
Affiliato
Brescia Est Srl
Viale Sant'Eufemia, 200 25135 Brescia (BS)

2026 Tecnocasa Franchising S.p.A. - P. IVA 08365160152 - Via Monte Bianco 60/A 20089 Rozzano (MI). Ogni agenzia ha un proprio titolare ed è autonoma. Privacy policy | Policy utilizzo | Cookie policy