Ufficio in affitto

Brescia, Via Fratelli Lechi - Viale Venezia
€ 830 / mese
5 locali 5 locali
110 Mq 110 Mq
1 bagno 1 bagno

Ufficio in affitto

Brescia, Via Fratelli Lechi - Viale Venezia

Descrizione annuncio

BRESCIA - Ufficio in posizione strategica a Brescia con comodi collegamenti e servizi nelle vicinanze, dotato di ascensore e impianti a norma.

DESCRIZIONE E PARTICOLARITÀ

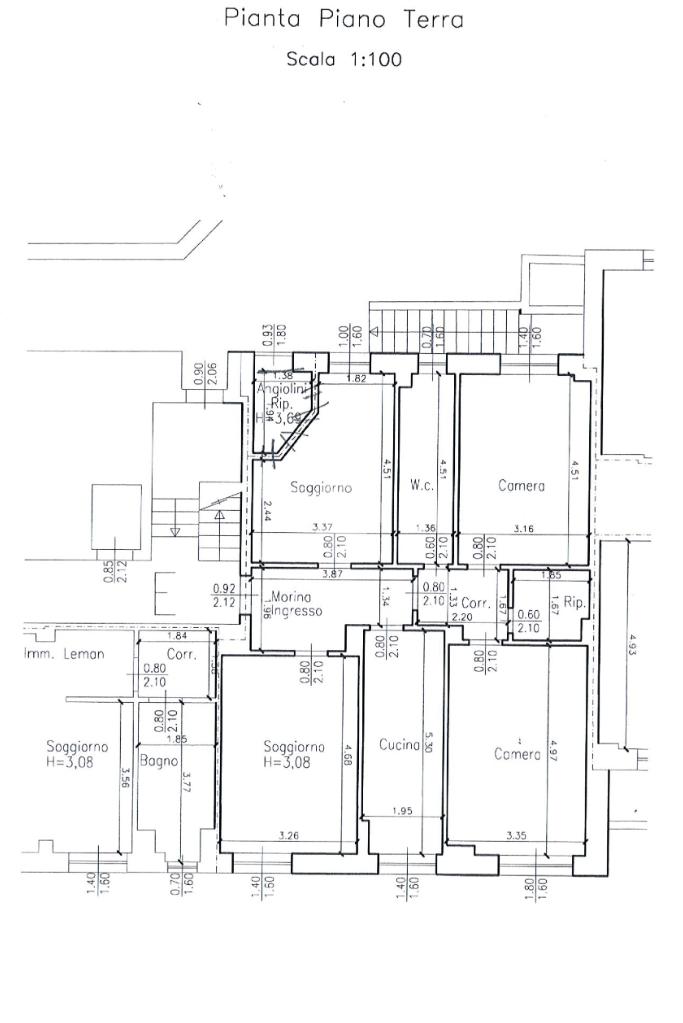
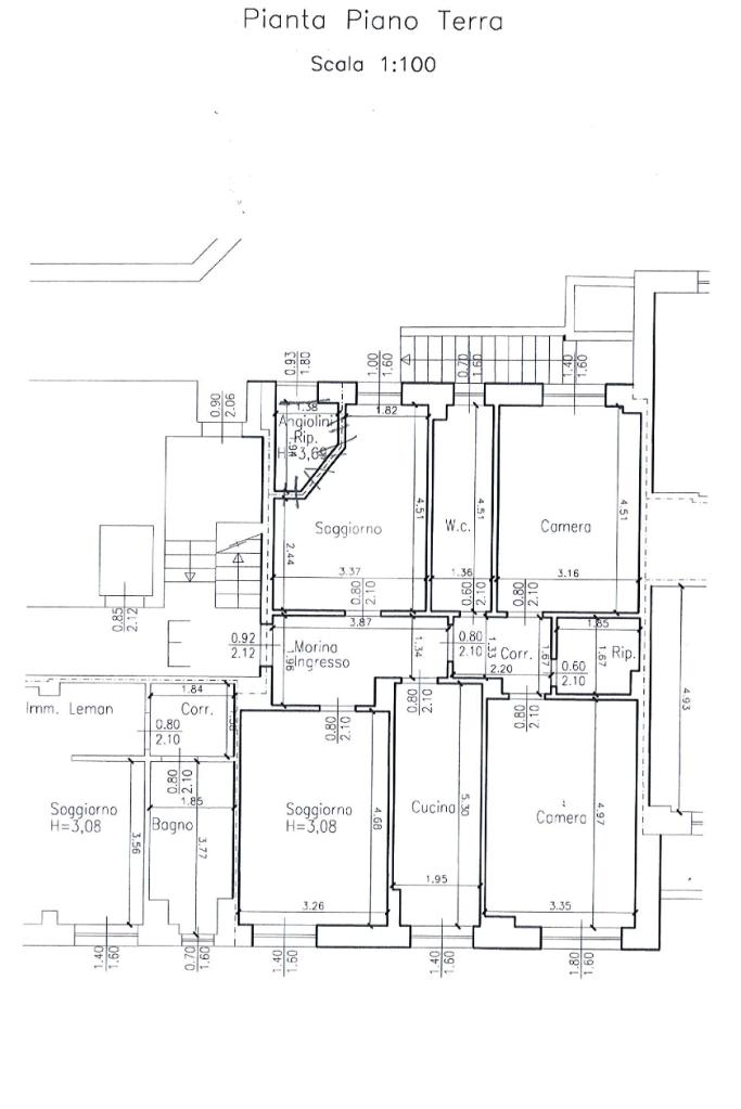
-Superficie: La superficie complessiva è di 115 mq suddivisa in 5 locali, un bagno e un pratico ripostiglio

-Posizione: L’immobile si trova in Via Fratelli Lechi, in una zona ben servita e facilmente accessibile di Brescia

-Visibilità: La disposizione degli ambienti e la posizione garantiscono buona luminosità e funzionalità per diverse attività professionali

-Impianti: L’immobile è dotato di impianto a norma e riscaldamento centralizzato con teleriscaldamento

-Infissi: Gli infissi sono nuovi, garantendo un buon isolamento termico e acustico grazie ai doppi vetri

-Servizi igienici: Presente un bagno funzionale

-Spese condominiali: Pari a € 3.300 annui comprensive di riscaldamento, teleriscaldamento e servizio ascensore

-Ascensore: Lo stabile è dotato di ascensore che facilita l’accesso ai piani

-Canone: soggetto a IVA

UBICAZIONE E CONTESTO

Via Fratelli Lechi si trova in una zona strategica di Brescia, a ridosso del centro storico e ben collegata alle principali arterie cittadine. L’area è caratterizzata da un contesto misto residenziale e direzionale, con la presenza di uffici, attività commerciali e servizi di prima necessità. La vicinanza al centro consente di raggiungere facilmente punti di interesse, istituti bancari, uffici pubblici e attività di ristorazione, rendendo la zona particolarmente adatta per studi professionali e attività direzionali. Inoltre, la presenza di mezzi pubblici e parcheggi nelle vicinanze garantisce comodità di accesso sia per i dipendenti che per la clientela.

Mostra tutto

Nelle vicinanze

Trasporto pubblico Trasporto pubblico
Vittoria
Vittoria
1,2 Km
Stazione FS
Stazione FS
1,4 Km
stazione di Brescia
stazione di Brescia
1,6 Km
Via Lechi n 16/18
Via Lechi n 16/18
120 m
v.le Venezia n 13
v.le Venezia n 13
140 m
Ricariche auto elettriche Ricariche auto elettriche
A2A Largo Torrelunga
170 m
A2A AmbienteParco
200 m
PARCHEGGIO Arnaldo A2A BS
230 m
A2A BS Brescia San Zeno
950 m
A2A Piazza della Vittoria
1,1 Km
Scuole Scuole
IAL Lombardia
270 m
Istituto Professionale per i Servizi Commerciali Sraffa
380 m
Liceo Ginnasio Statale Arnaldo
400 m
Liceo Veronica Gambara
540 m
Conservatorio di musica Luca Marenzio
590 m
Farmacia Farmacia
Farmacia Carini
130 m
Farmacia Ferretti
400 m
Farmacia Fiorentini
600 m
Farmacia Miserocchi
810 m
Farmacia Schiavo
910 m
Ospedali Ospedali
Clinica San Camillo
710 m
Ospedale Sant'Orsola
1,3 Km
Ospedale dei Bambini Ronchettino
1,4 Km
Fondazione Poliambulanza Istituto Ospedaliero
1,6 Km
Unità operativa neuropsichiatria dell'infanzia e dell'adolescenza
2,1 Km
Supermercati Supermercati
COOP
350 m
NaturaSì
1,1 Km
Sapori & Dintorni Conad
1,1 Km
Italmark
1,2 Km
Pam
1,3 Km
Negozi Negozi
Drogheria Ronchi
220 m
Reset
790 m
Coin
880 m
Forneria Il Pane
1,1 Km
El Forner
1,2 Km
Bar Bar
Mondo Liquido
140 m
La Bodeguita
360 m
Madera
420 m
Bar Camera
540 m
Bar
630 m
Ristoranti Ristoranti
Osteria Nonna Mercede
50 m
Fuji
220 m
Arnold's Pizzeria
270 m
Trattoria Santa Giulia
440 m
Ristorante Pizzeria Da Lucio
600 m
Mostra tutto

Caratteristiche

Rif.:
61211260
Piano:
Rialzato di 5 con ascensore
Totale piani:
5
Posti auto:
99
Condizionamento:
Autonomo
Ascensore:
Mostra tutto
Prezzo Prezzo
€ 830 / mese
Spese annue Spese annue
€ 3.300

Altre caratteristiche

Descrizione dei locali
Bagno antibagno

Classe Energetica

Questo immobile è esente da classe energetica
Anno di costruzione:
2010
Riscaldamento:
Autonomo
Tipo impianto:
Ad aria
Tipo alimentazione:
Metano

Ti interessa visionare l'immobile?

Fissa un appuntamento  Fissa un appuntamento

Richiedi informazioni

Clicca su Leggi per aprire l'informativa
* Questi campi sono obbligatori
Affiliato
Brescia Est Srl
Viale Sant'Eufemia, 200 25135 Brescia (BS)

Il nostro staff


  • Beatrice Gigliotti
    Coordinatrice

  • Randa Ehroud
    Collaboratrice

  • Loris Maria Villy Mittica
    Affiliato

  • Francesco Cesare Sandrini
    Collaboratore
Viale Sant'Eufemia, 200 25135 Brescia (BS)
Zona: Brescia Hinterland Est - Rezzato - Castenedolo - Mazzano - Molinetto
Mostra su mappa
Orari: lunedì-venerdì 8:30-12.30 14.00-19:00 sabato 8.30-12.30
Affiliato
Brescia Est Srl
Viale Sant'Eufemia, 200 25135 Brescia (BS)

2026 Tecnocasa Franchising S.p.A. - P. IVA 08365160152 - Via Monte Bianco 60/A 20089 Rozzano (MI). Ogni agenzia ha un proprio titolare ed è autonoma. Privacy policy | Policy utilizzo | Cookie policy