Ufficio in affitto

Botticino, Via Molini
€ 2.700 / mese
1 locale 1 locale
350 Mq 350 Mq
1 bagno 1 bagno

Ufficio in affitto

Botticino, Via Molini

Descrizione annuncio

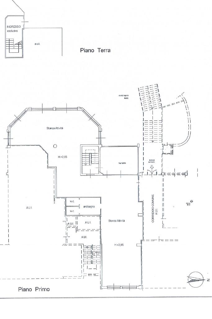
BOTTICINO, Via Molini – Ufficio open space di 350 mq in ristrutturazione, situato al primo piano di un edificio indipendente servito da ascensore e scale interne. L’immobile gode di ottima visibilità data dalle 4 vetrine fronte strada ed è facilmente raggiungibile tramite strada principale.

DESCRIZIONE E PARTICOLARITÀ

-Superficie: Il locale ha una superfice di 350 mq open space.

-Visibilità: La posizione dell’immobile garantisce ottima visibilità data dalle 4 vetrine fronte strada. Ha una posizione strategica con alta viabilità, di facile raggiungimento attraverso la strada principale.

-Posizione: Il locale si trova in via Molini 95, in posizione strategica sulla strada principale di Botticino. L’area è facilmente accessibile in auto con collegamenti rapidi alla strada principale.

-Servizi igienici: L’immobile è dotato di servizio igienico con antibagno recentemente ristrutturato.

-Parcheggio: L’edificio gode di un ampio piazzale privato, ad uso esclusivo delle attività.

-Impianti: L'ufficio dispone di impianto di riscaldamento e condizionamento autonomi completamente rinnovati. L’impianto elettrico rispetta tutte le normative attuali.

-Canone: Soggetto ad IVA.

-Spese condominiali: 200/EURO annui circa

Il locale verrà consegnato finito.
Le prime foto mostrano lo stato attuale al rustico, mentre le ultime immagini si riferiscono a un altro locale già completato all'interno dello stesso complesso, per offrire un'anteprima delle finiture previste.

UBICAZIONE E CONTESTO

Botticino è un comune italiano di 10 638 abitanti della provincia di Brescia in Lombardia. È situato nell’area pedemontana a nord-est del capoluogo, ai piedi delle prealpi bresciane. Si trova sovrastato dal Monte della Maddalena ed è noto per il marmo Botticino, denominazione di marmo commerciale estratto dalle cave del paese. Il bacino bresciano risulta essere il secondo per importanza nell’escavazione di pietre d’Italia dopo quello di Carrara. Botticino si collega alla strada statale che collega Brescia e il Lago di Garda.

Mostra tutto

Nelle vicinanze

Trasporto pubblico Trasporto pubblico
Sant'Eufemia - Buffalora
Sant'Eufemia - Buffalora
2,7 Km
Rezzato
Rezzato
2,7 Km
Botticino via Molini n 75
Botticino via Molini n 75
120 m
Botticino via Mazzini n 143
Botticino via Mazzini n 143
210 m
Ricariche auto elettriche Ricariche auto elettriche
LIDL Brescia Sant'Eufemia
2,0 Km
Scuole Scuole
Scuola secondaria di primo grado Giovita Scalvini
630 m
Scuola Primaria Tito Speri
1,1 Km
Scuole
1,6 Km
Scuola Primaria Don Luigi Orione
1,6 Km
Scuola Secondaria di Primo Grado Don Luigi Orione
1,6 Km
Farmacia Farmacia
Farmacia Valverde
1,1 Km
Farmacia Lanzani
1,7 Km
Farmacia Comunale San Carlo
2,3 Km
Farmacia Simeoni Dottoressa Piazzi
2,5 Km
Farmacia Cavadini
2,8 Km
Ospedali Ospedali
Azienda Tutela Salute
2,5 Km
Supermercati Supermercati
Conad
650 m
Punto Simply
890 m
Italmark
1,9 Km
LIDL
2,0 Km
Despar
2,3 Km
Negozi Negozi
La Nuova Forneria
1,6 Km
Da Pì
2,1 Km
Dolce Salato
2,4 Km
Minimarket Sorelle Confortini
2,5 Km
Negozi
2,5 Km
Bar Bar
Richs
1,8 Km
Circolo Colony
2,1 Km
Cocorico cafè
2,2 Km
Prima Sosta
2,7 Km
Ristoranti Ristoranti
Trattoria Casanuova
110 m
Trattoria Antico Sole
960 m
Ristorante Il Ciamb'otto
1,0 Km
Agriturismo Serraglio
1,2 Km
Pizzeria e Ristorante Le Rocce
1,4 Km
Mostra tutto

Caratteristiche

Rif.:
61124209
Piano:
1 di 2 con ascensore (Piano alto)
Posti auto:
99
Condizionamento:
Autonomo
Ascensore:
Riscaldamento:
Autonomo
Mostra tutto
Prezzo Prezzo
€ 2.700 / mese
Spese annue Spese annue
€ 200

Classe Energetica

Questo immobile è esente da classe energetica
Anno di costruzione:
1990
Riscaldamento:
Autonomo
Tipo impianto:
Ad aria
Tipo alimentazione:
Altro

Ti interessa visionare l'immobile?

Fissa un appuntamento  Fissa un appuntamento

Richiedi informazioni

Clicca su Leggi per aprire l'informativa
* Questi campi sono obbligatori
Affiliato
Brescia Est Srl
Viale Sant'Eufemia, 200 25135 Brescia (BS)

Il nostro staff


  • Beatrice Gigliotti
    Coordinatrice

  • Randa Ehroud
    Collaboratrice

  • Loris Maria Villy Mittica
    Affiliato

  • Francesco Cesare Sandrini
    Collaboratore
Viale Sant'Eufemia, 200 25135 Brescia (BS)
Zona: Brescia Hinterland Est - Rezzato - Castenedolo - Mazzano - Molinetto
Mostra su mappa
Orari: lunedì-venerdì 8:30-12.30 14.00-19:00 sabato 8.30-12.30
Affiliato
Brescia Est Srl
Viale Sant'Eufemia, 200 25135 Brescia (BS)

2026 Tecnocasa Franchising S.p.A. - P. IVA 08365160152 - Via Monte Bianco 60/A 20089 Rozzano (MI). Ogni agenzia ha un proprio titolare ed è autonoma. Privacy policy | Policy utilizzo | Cookie policy